Büro- & Geschäftsgebäude/ Praxisfläche & Gastronomie Projektierung und Vermietung in der Adi-Preißler-Allee 2, in 44309 Dortmund (provisionsfrei) - Gewerbeimmobilie
Deutschland,
Nordrhein-Westfalen,
44309 Dortmund, Adi-Preißler-Allee 2
PRB-1001
PRB-1001
Kosten:
| Provision: | provisionsfrei |
| Erläuterungen zu den Mietnebenkosten: | auf Anfrage |
Das Objekt in Zahlen:
| Grundstücksfläche ca.: | 1.915,00 m² |
| Bebaute Grundstücksfläche ca.: | 515,00 m² |
| Gesamtmietfläche: | 2.015,00 m² |
| Gewerbefläche: | 1.500,00 m² |
| Gewerbefläche unvermietet: | 1.500,00 m² |
| Nutzfläche: | 515,00 m² |
| Baujahr: | 2023 |
| Bauweise: | massiv |
| Bezugsfertig zum: | ab 2024 |
| Verfügbar: | ab 2024 |
| Anzahl Etagen: | 3 Etagen zzgl. Keller |
| Anzahl Zimmer: | einteilbar nach Mieterwunsch |
| Anzahl Badezimmer: | einteilbar nach Mieterwunsch |
| Stellplätze: | 23 Stück |
| Bebauungsplan: | GE |
Heizung / Energieinformationen:
| Heizung: | Geothermie & Photovoltaik |
| Energieträger: | Strom |
| Energieausweis: | wird erstellt |
| Energieausweis gültig bis: | neu |
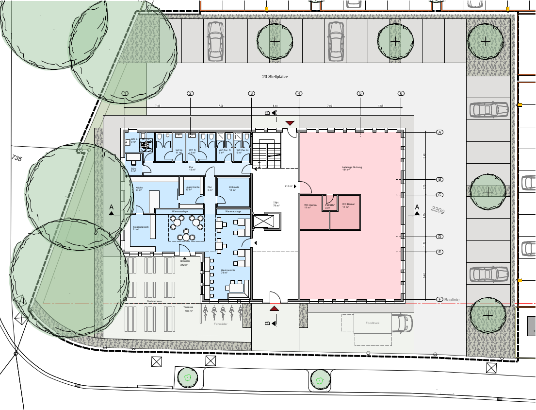
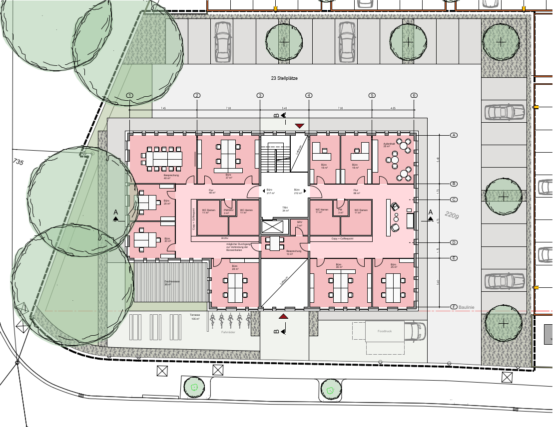
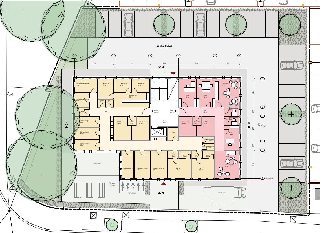
Objektbeschreibung:
| Werden Sie Mieter in unserem neuesten Projekt! Wir errichten das abgebildete Büro- und Geschäftsgebäude in Dortmund Hohenbuschei ab dem 4 Quartal 2023 nach Ihren Vorstellungen, Wünschen und Bedürfnissen! Die dargestellten Grundrisse sind exemplarisch und können in Abstimmung mit den weiteren Mietern entsprechend Ihrer individuellen Nutzung angepasst werden. Nach Errichtung verfügt unser Objekt über insgesamt ca. 2.015 m² Mietfläche auf drei Etagen zzgl. Keller. Ob Gastronomie, Arztpraxis oder Büro, Sie entscheiden bis zum Baubeginn in Abstimmung mit uns Ihre individuelle Raumaufteilung und Ausstattung mit. Die Vermietung ist entweder Ganz, Etagenweise oder ab ca. 200 m² möglich. Ansprechpartner: Herr Stefan Rundholz RUNDHOLZ Immobilien und mehr... Oberste-Wilms-Str. 15d 44309 Dortmund |
Weitere Bilder zum Objekt:
Objektlage:
| Östlich der Dortmunder Innenstadt, im Dortmunder Stadtteil Brackel liegt das Neubaugebiet Hohenbuschei zentral und doch im Grünen. Nahe des BVB Trainingsgeländes ist der Standort innerhalb der Stadt und auch darüber hinaus bekannt und beliebt. Fußläufig sind zahlreiche Nahversorgungs- und Freizeitmöglichkeiten zu erreichen, sowie auch der angrenzende Royal Saint Barbara‘s Golfclub. Fußweg zu öffentl. Verkehrsmitteln 1 Min. Fußweg zur Nahversorgung 3 Min. Fahrzeit nächster Hauptbahnhof 10 Min. Fahrzeit nächste Autobahn ab 8 Min. (A40; A44; A1; A2) Fahrzeit nächster Flughafen 15 Min. |
Wir brauchen Ihre Zustimmung!
Diese Webseite verwendet Google Maps um Kartenmaterial einzubinden. Bitte beachten Sie dass hierbei Ihre persönlichen Daten erfasst und gesammelt werden können. Um die Google Maps Karte zu sehen, stimmen Sie bitte zu, dass diese vom Google-Server geladen wird. Weitere Informationen finden sie HIER
Exposé:
- Objekt- Exposé: Download
Sprechen Sie uns an!
Ihr Ansprechpartner:
|
Herr Brzezinski PRojekt Bau Rundholz GmbH Oberste-Wilms-Str. 15d 44309 Dortmund Telefon: 0231-562255-36 Fax: 0231-562255-66 Email: brzezinski@rundholz.com |
PRojekt Bau Rundholz GmbH
Gesellschaft mit beschränkter Haftung
Sitz der Gesellschaft: Dortmund
Handelsregister: Amtsgericht Dortmund, HRB 32424
Geschäftsführer: Dipl.-Ing. Stefan Rundholz, Dipl.-Soz.-Wiss. Robert Brzezinski